








Wolfurt, Wiesenweg 9
- 17 Wohneinheiten Bestand, 63 - 146 m²
- 18 Wohneinheiten Neubau, 39 - 108 m²
- Baubeginn: Anfang 2021
- Fertigstellung: Anfang 2023
Die altehrwürdige Klöppelei-Fabrik Hesse wird aus seinem Dornröschenschlaf geholt. Der industrielle Charakter des Bestandes wird ergänzt durch zweigeschossige Gauben, die ein einzigartiges Wohngefühl in den Dachgeschosswohnungen ergeben. Der Neubau erhält ebenfalls eine mittels Bretterschalung hergestellte Betonfassade. Das Einfügen in den Kontext des Wiesenwegs spielt dabei eine essenzielle Rolle. Offenes, gestaltbares Wohnen mit viel Licht, Luft und Sonne, innen wie außen, sind das Angebot.
Wolfurt ist zu Recht eine der attraktivsten Orte des Vorarlberger Rheintals eingebettet zwischen der Landeshauptstadt Bregenz und der größten Stadt des Landes Dornbirn. Fast urbane Dichte wechselt mit grünen Räumen und dörflichen Strukturen. Angebote für Leben mit perfekter Infrastruktur und mit Ruhe und Rückzugszonen. Wohl eine der besten Adressen in diesem Angebot ist der Wiesenweg in Wolfurt. Hier ist es ruhig und dennoch ist man sehr zentral mit besten Anbindungen. Die altehrwürdige Klöppelei-Fabrik Hesse wird aus seinem Dornröschenschlaf geholt. Der industrielle Charakter des Bestandes wird ergänzt durch zweigeschossige Gauben, die ein einzigartiges Wohngefühl in den Dachgeschosswohnungen ergeben. Der Neubau erhält ebenfalls eine mittels Bretterschalung hergestellte Betonfassade. Das Einfügen in den Kontext des Wiesenwegs spielt dabei eine essenzielle Rolle. Offenes, gestaltbares Wohnen mit viel Licht, Luft und Sonne, innen wie außen, sind das Angebot. Nachhaltigkeit im eigentlichen Sinne eine Selbstverständlichkeit. Wahrscheinlich gehört der Wiesenweg zu einem der besten Orte, um in Wolfurt zu leben.
moderne und zeitlose Architektur
absolute Bestlage in Wolfurt
individuell gestaltbare Grundrisse
Massivbauweise, Sichbetonfassade mit Bretterschalung
Massiv-Eiche-Dielen 2cm stark
raumhohe Türen, Holzblockzargen mit flächenbündiger Tür
Bäder mit Naturstein (brasilianischem Buntschiefer)
Waschbecken Laufen Pro
Armaturen Hans Grohe Talis E
Holz-Alu-Fenster flächenbündig
Klosettanlage Roca ohne Spühlrand
Wolfurt nennt sich “Gartengemeinde” und das zu Recht. Als einer der attraktivsten Orte Vorarlbergs wird diesem Begriff offensiv Rechnung getragen. Fast urbane Dichte wechselt mit grünen Räumen, Angebote für Leben mit Ruhe und Rückzugszonen. Wohl eine der besten Adressen in diesem Angebot ist der Wiesenweg. Hier ist es ruhig und dennoch ist man mitten drin.
Ein Spielplatz, ein Kindergarten, ein Bäcker oder ein Gasthaus sind in unmittelbarer Umgebung. Schulen, Supermarkt, Wandergebiete und Ried sind gut erreichbar. Unmittelbarer Bus- und Bahnanschluss nach Dornbirn und Bregenz. Wahrscheinlich ist der Wiesenweg 9 einer der besten Orte, um in Vorarlberg zu leben.
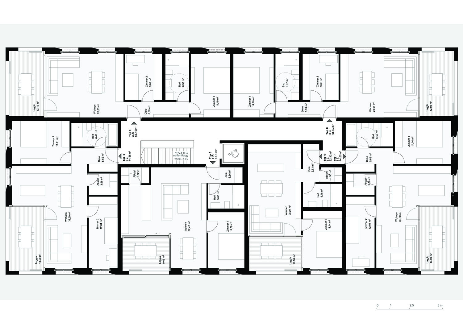
Blättern Sie hier durch die Grundrisse der einzelnen Etagen, vom Untergeschoss bis zum Dachgeschoss. Betrachten Sie die Einteilung der einzelnen Wohnungen, der Fahrradräume, der Kellerräume und der Tiefgaragenplätze im Gesamtkontext.